UAIRN - Multifunctioneel gebouw met evenementenzaal, horeca en kantoren - Handel over te nemen - Brussel

Multifunctioneel gebouw met evenementenzaal, horeca en kantoren

Beschrijving van het bedrijf UAIRN

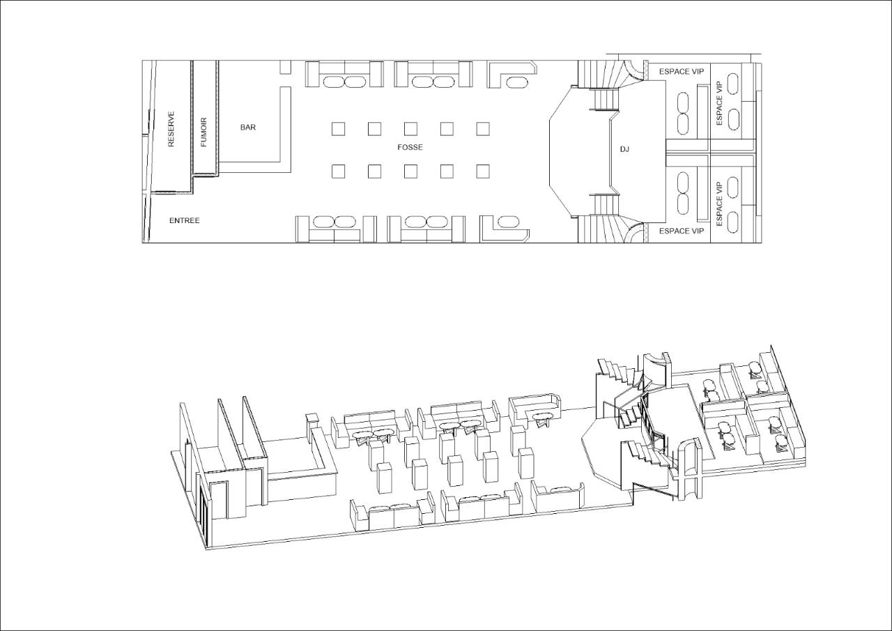
🏢 Multifunctioneel gebouw met evenementenzaal, horeca en kantoren 📐 Totale oppervlakte: ± 1 0...

Log in om de volledige beschrijving te zien via deze link.

Bedrijfsdetails UAIRN
  • Land
  • Regio
  • Referentie
    UAIRN
  • Sector
  • Omzet
    000-000k
  • Personeel
    00
  • Vraagprijs
    000-000k
  • Transactietype
    000000000
Per regio